Convocaron la licitación para 37 nuevas viviendas que buscan fortalecer el Norte de Rafaela
:format(webp):quality(40)/https://radiorafaelacdn.eleco.com.ar/media/galeria/fotos/2024/11/29/l_1732896523.jpg)
El acto de apertura de sobres se realizará el próximo jueves 19 de diciembre y el presupuesto oficial es de 2.809.938.567,75 pesos.
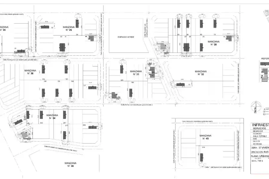
El Gobierno provincial convocó a la licitación pública Nº 19/24 para ejecutar 37 viviendas en lotes disponibles correspondientes al Plan Nº 4903 en barrio Mora. Las viviendas se construirán en lotes individuales ubicados en 8 manzanas del plan Mi Tierra, Mi Casa.
Al respecto, el Intendente Leonardo Viotti señaló que "durante 2025 se van a llevar adelante estas construcciones y cuando ya estén avanzadas vamos a abrir la posibilidad para que todas las familias que lo necesiten puedan inscribirse y participar del sorteo para que todas tengan las mismas posibilidades".
Seguidamente, recordó que estos espacios habitacionales se construirán en el sector Norte de la ciudad de Rafaela. "En los próximos días también vamos a anunciar nuevas herramientas porque seguimos trabajando para poder darle buena noticia a nuestros vecinos, principalmente a aquellos que necesitan una posibilidad de llegar a su primer vivienda", añadió.
Los prototipos de vivienda son: Compacta (VC), Vivienda Lineal (VL) y Vivienda Con Adaptación a Personas con Discapacidad Motriz (VCD). Todas tendrán dos dormitorios. Las viviendas se ubicarán en las siguientes manzanas Nº 25, 26, 28, 30, 31, 32, 34 y 45.
El acto de apertura de sobres se realizará el próximo jueves 19 de diciembre y el presupuesto oficial es de 2.809.938.567,75 pesos (dos mil ochocientos nueve millones novecientos treinta y ocho mil quinientos sesenta y siete pesos con setenta y cinco centavos).
"La inscripción va a ser muy parecida a lo que fue la entrega de las 10 viviendas en el barrio Mora, donde unas semanas antes se cerró el registro digital de acceso a la vivienda para la inscripción y posteriormente se hizo un sorteo por lotería provincial", explicó Pierluigi Chiatti, responsable del Instituto Municipal de la Vivienda.
Es importante aclarar que las familias que ya se encuentran inscriptas en el Instituto Municipal de la Vivienda no deberán volver a inscribirse para este sorteo.
El plazo de ejecución se estima para 12 meses a partir del momento de la firma del contrato.
Esta iniciativa es un trabajo conjunto de la Dirección Provincial de Vivienda, del Gobierno Provincial, junto al Gobierno Municipal y el Instituto Municipal de la Vivienda.

Para comentar, debés estar registradoPor favor, iniciá sesión